Sale Agreed £699,950 - Flat
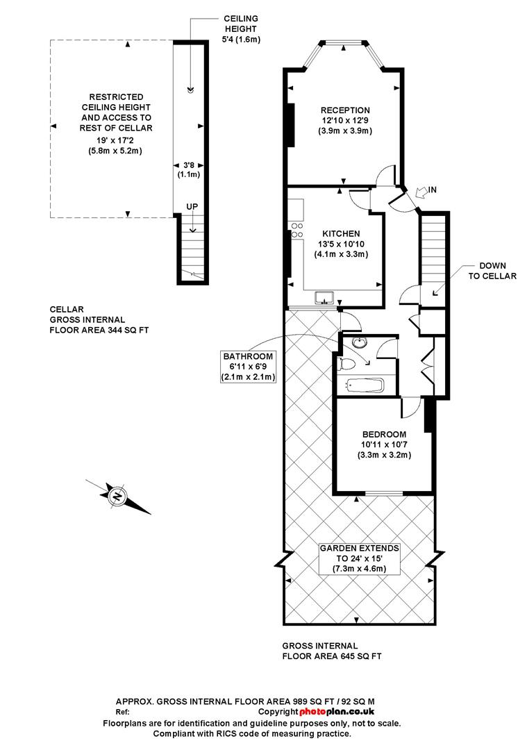
A large one double bedroom ground floor flat located within the popular Mansfield Conservation Area, moments from the open space of Parliament Hill and the Heath. A good sized reception is found at the front of the property, along with a separate kitchen. There is a lovely private garden at the rear, plus good storage space in the form of a cellar. Quick and easy access to the City and West End is provided nearby at Gospel Oak (Overground) and Belsize Park (Underground) stations, along with the excellent 24 bus route.
Tenure: Leasehold






