Sold £2,300,000 - House
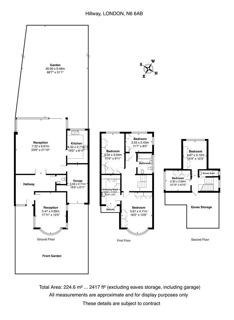
A linked detached 5 bedroom family house on the highly regarded, private, Holly Lodge Estate. Situated on the favoured west side of the road this property already benefits from a ground floor rear extension and a converted loft. Although requiring complete modernisation, it is not difficult to visualise the very fine family home that this will become. The master bedroom has an en suite dressing room which, we are told, already has plumbing to create an additional bathroom. Hillway, is the widest of the tree lined avenue ‘s on the estate, which also benefits from large communal gardens. The property is within a short stroll of the destination shops and cafes of Swains Lane, Hampstead Heath and Highgate Ponds. Highgate Village is also within a short walking distance.
* 2 Reception Rooms * Kitchen * Master Bedroom with Dressing Room en Suite * 4 Further Bedrooms * Bathroom * Shower Room * Large Southwest Facing Garden * Driveway * Garage * Guest Cloakroom *
Tenure: Unspecified











