Sold £3,250,000 - House
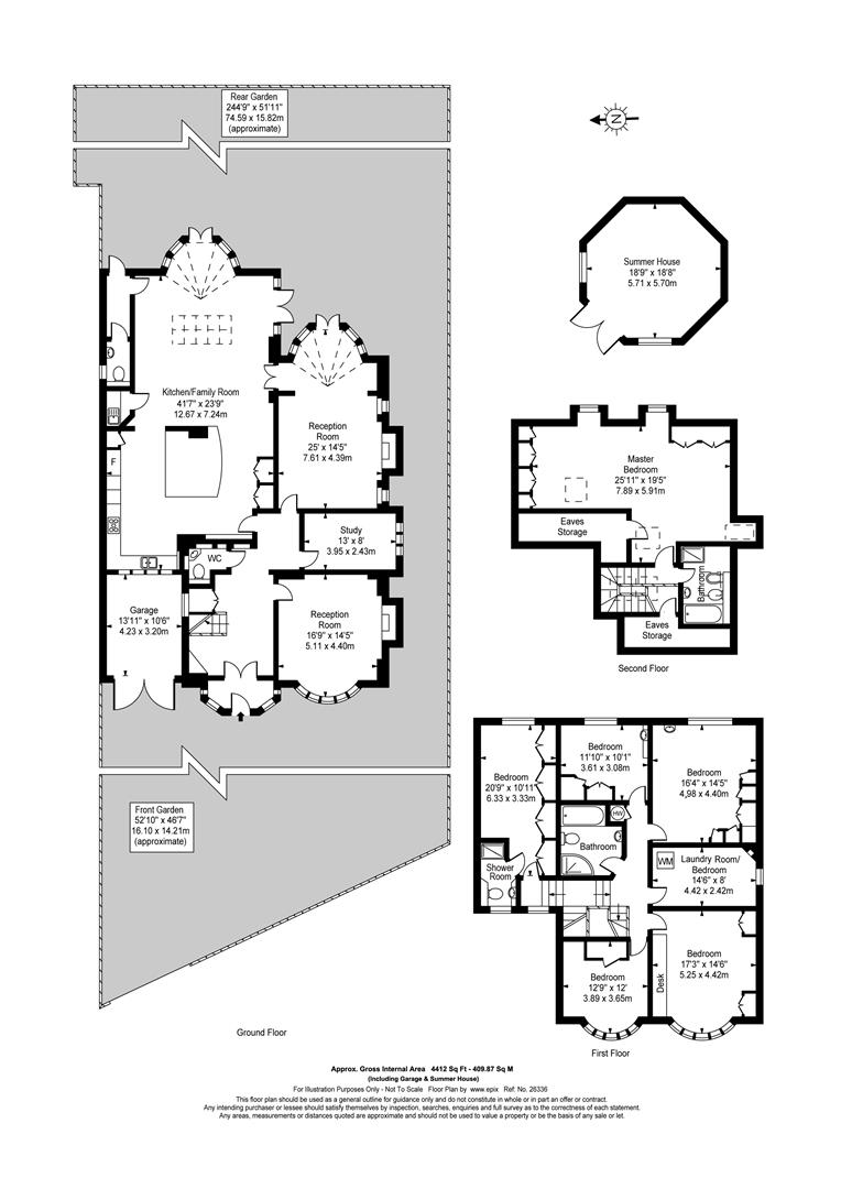
A rare opportunity to acquire a substantial and imposing detached family house of approx 4,412 sq ft (including garage and summer house) with an astonishingly large garden of 244 ft, literally on the doorstep of Highgate Wood. This wonderful home has bright and spacious accommodation which is well planned and features a magnificent kitchen/family room of 41’7 x 23’9 leading to the garden. Also in the garden is an attractive octagonal summer house. Accommodation comprises; Master bedroom with en-suite bathroom, 6 further bedrooms, en-suite shower room, family bathroom, 3 receptions, kitchen/family room, 2 guest WC’s, garage and off street parking for 3 cars, summer house and 244′ garden.
Reception
7.61 x 4.39 (24’11” x 14’4″)
Reception
5.11 x 4.40 (16’9″ x 14’5″)
Reception
3.95 x 2.43 (12’11” x 7’11”)
Bedroom
5.25 x 4.42 (17’2″ x 14’6″)
Bedroom
4.98 x 4.40 (16’4″ x 14’5″)
Bedroom
6.33 x 3.33 (20’9″ x 10’11”)
Bedroom
3.89 x 3.65 (12’9″ x 11’11”)
Bedroom
3.61 x 3.08 (11’10” x 10’1″)
Bedroom
4.42 x 2.42 (14’6″ x 7’11”)
Bedroom
7.89 x 5.91 (25’10” x 19’4″)
Kitchen
12.67 x 7.24 (41’6″ x 23’9″)
Tenure: Unspecified










