Sold £1,695,000 - House
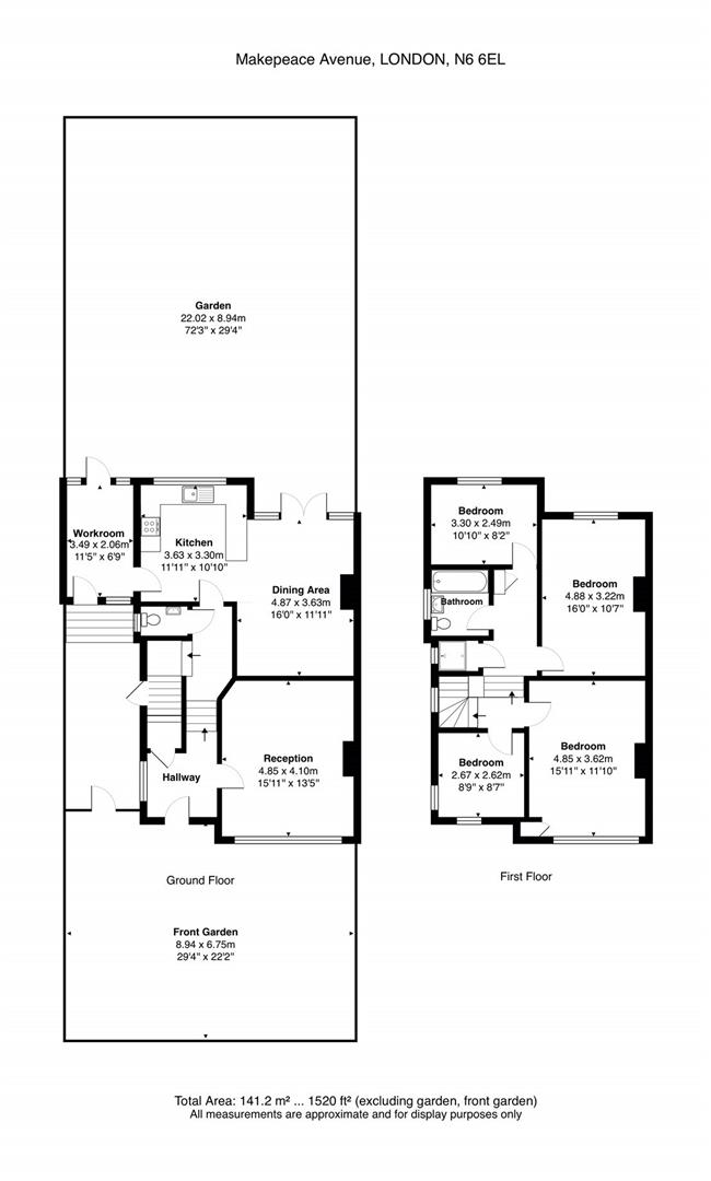
An attractive semi-detached 4 bedroom house requiring some modernisation. This bright and well planned family house also affords far reaching views over the City and the Heath. The property is situated in a highly sought after location on the popular Holly Lodge Estate and is just a short walk to the destination cafes and shops of Swains Lane. Being just a short amble to the open expanse of Hampstead Heath and with excellent transport links including plentiful bus routes, Northern line tube and main line rail, the house is also conveniently situated to the area’s large choice of highly regarded schools.
* 4 Bedrooms * Bathroom * Shower * Two Reception Rooms * Kitchen * Cloakroom * Workroom * Delightful Garden * Short Walk to Hampstead Heath * Good Transport Links *
Tenure: Unspecified




























