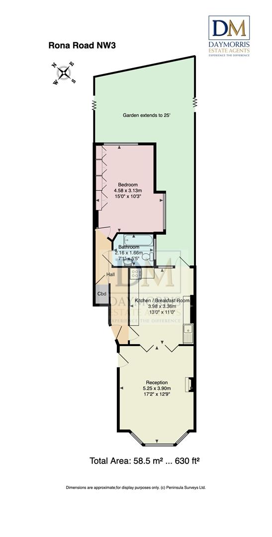
Sold Offers In Excess Of £750,000 - Flat
A beautifully renovated two bedroom flat, on the upper floors of a converted Victorian property. Every room is very tastefully presented, and there is a lovely feeling of light and space throughout. To the rear there is both a large roof terrace from the hallway, and an additional balcony from the top floor bedroom, both providing wonderful far reaching rooftop views. Rona Road is a quiet residential street, just a short walk from Hampstead Heath, Parliament Hill Lido and Gospel Oak (Overground) station.
Tenure: Unspecified













