Sold £1,800,000 - House
An attractive semi-detached residence with high ceilings and very bright accommodation arranged over two floors. Originally a four bedroom house it has now been remodelled and comprises 3 bedrooms, large bathroom (originally bedroom 4), store room (originally bathroom), spacious double reception room, kitchen, cloakroom, off street parking for 2 cars, and southerly rear garden. There is scope for a loft conversion (subject to consent). The property is situated in an extremely popular position, close to local shops, restaurants, bus routes and also the ever popular expanses of Hampstead Heath and Parliament Hill Fields.
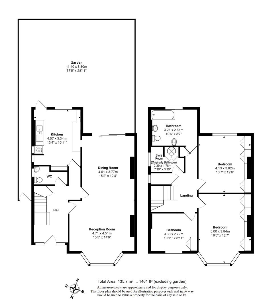
Reception Room
4.71 x 4.51 (15’5″ x 14’9″)
Dining Room
4.61 x 3.77 (15’1″ x 12’4″)
Kitchen
4.07 x 3.34 (13’4″ x 10’11”)
Bedroom 1
5.00 x 3.84 (16’4″ x 12’7″)
Bedroom 2
4.13 x 3.82 (13’6″ x 12’6″)
Bedroom 3
3.33 x 2.72 (10’11” x 8’11”)
Bathroom
3.21 x 2.61 (10’6″ x 8’6″)
Store Room
2.39 x 1.78 (7’10” x 5’10”)
Garden
11.40 x 8.80 (37’4″ x 28’10”)
Tenure: Unspecified











