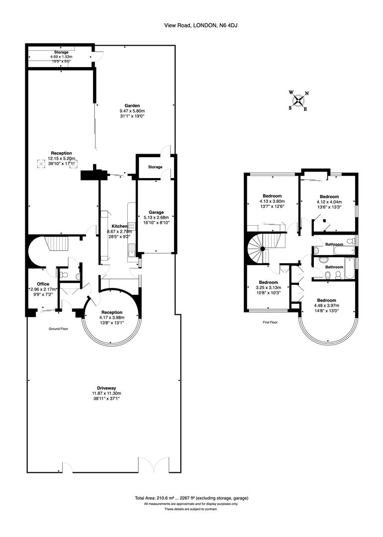
For Sale £2,795,000 - House
Situated in this highly sought-after area this attractive modern house spans an impressive 2,267 square feet, arranged over two floors, comprising a huge reception room, charming circular sitting room, four bedrooms, and two bathrooms, one en-suite. The property has an integral garage and off-street parking, valuable features in this area. Highgate is renowned for its picturesque streets, vibrant community, and proximity to Highgate Golf Course, Kenwood and Hampstead Heath. Highgate Village and Highgate (Northern Line) Underground Station are also close by.
* 4 Bedrooms * 2 Bathrooms * Huge Reception Room * Circular Sitting Room * Study * Kitchen * Entrance Hall * Guest Cloakroom * Attached Garage * Off Street Parking * 2 Storage Rooms * Paved Garden * EPC D * Council Tax Band G *
Tenure: Freehold
Council Tax Band: G



























