Sold £1,850,000 - House
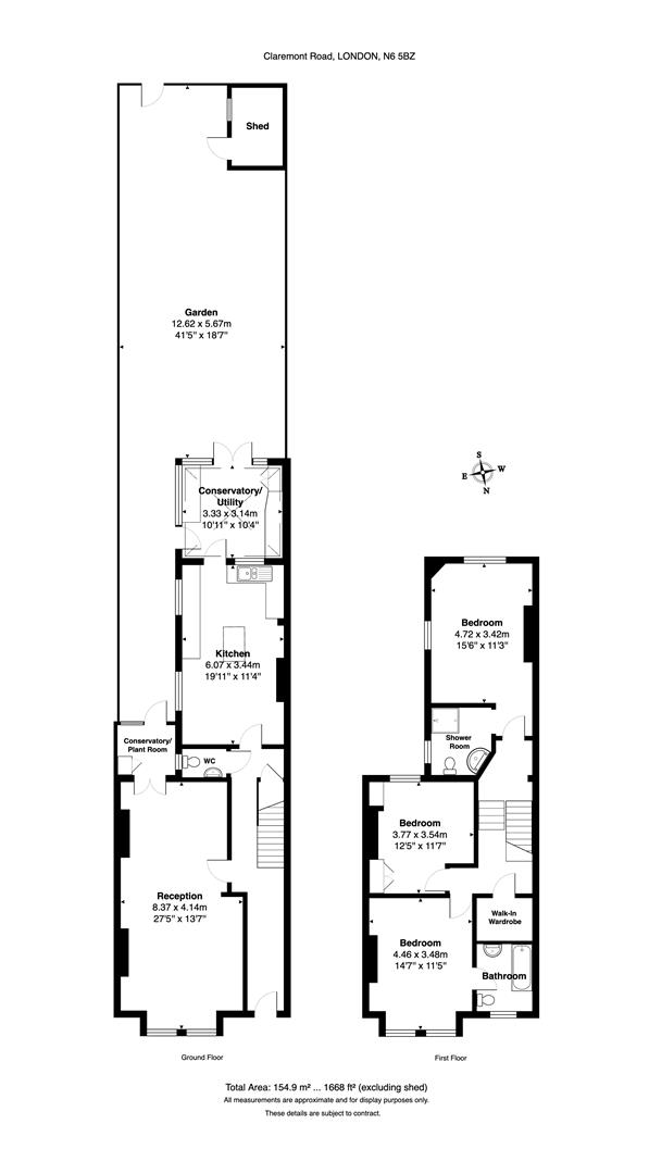
A truly delightful Victorian terraced house in an equally delightful road. The three bedroom accommodation which has potential to extend (subject to planning), is arranged over two floors and retains many original period features. The property has a south-west facing rear garden and backs onto the Parkland Walk. Conveniently located, the property is just a short walk from Highgate Northern line Underground Station, buses and plentiful local shops.
* 3 Bedrooms * Bathroom * Shower Room * Large Reception Rooms Flooded With Natural Light * Kitchen/Breakfast Room * Conservatory/Utility Room * Downstairs WC * South-West Facing Garden * EPC D * Council Tax Band G *
Tenure: Freehold
Council Tax Band: G




















