Sold £585,000 - House
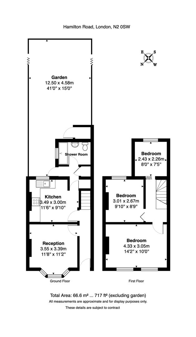
A Victorian terraced property with accommodation arranged over two floors, requiring total refurbishment and offering scope for loft conversion subject to planning permission
The property is situated in a quiet turning off East End Road, on the border of Hampstead Garden Suburb, within close proximity to bus routes and local shops.
* 3 Bedrooms * Shower Room * Reception Room * Kitchen * Sunny Garden * Council Tax Band D * EPC D *
Tenure: Freehold
Council Tax Band: D










