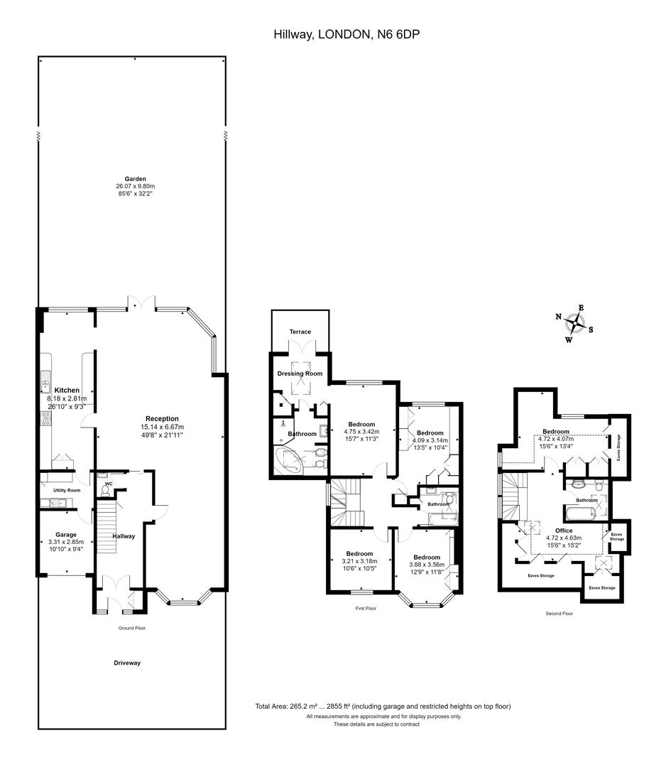
Sold £2,950,000 - House
Situated on the private Holly Lodge Estate on the upper part of Hillway, an impressive 5 bed family house with excellent kerb appeal. This wonderful house, approached via a large driveway, affords some 2,850 sq. ft. of accommodation with the emphasis on entertaining. The house benefits from a vast 49′”x 22′ reception room and this leads on to a beautiful well stocked garden. Trendy Swains Lane with its good mix of shops and eateries are just a fleeting walk away as are Hampstead Heath and Highgate Ponds. Transport links are also excellent with bus, tube and Overground all within easy reach.
* Principle Bedroom * En-Suite Dressing Room & Bathroom * 4 Further Bedrooms * Study Area/Potential 6th Bedroom * 2 Further Bathrooms * Enormous Reception/ Dining Room * Stunning Kitchen/Breakfast Room * Utility Room * Guest WC * Garage/Storage Room * Plentiful Off Street Parking * 85′ Garden *
Tenure: Freehold























